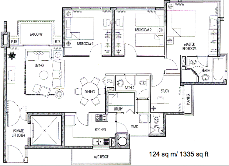
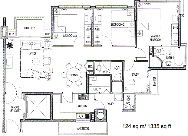
Caribbean 3 Bedrooms + Study
2nd floor & above: 1,335 - 1,647 sq ft
CARIBBEAN
REFLECTIONS
CORALS
CONTACT US
Keppel Bay Homes
Disclaimer | Terms and Conditions | Copyright