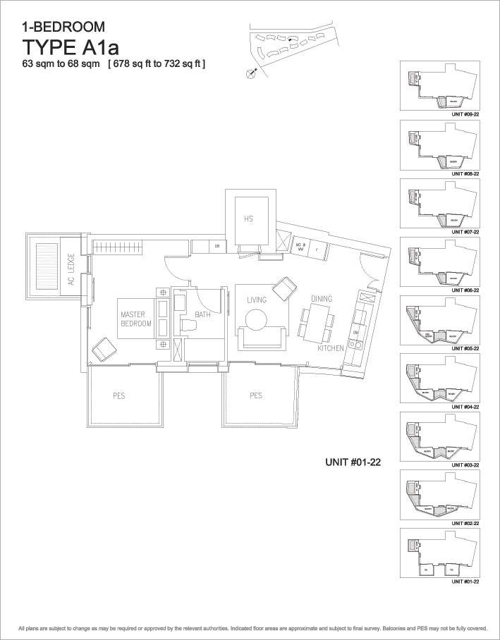
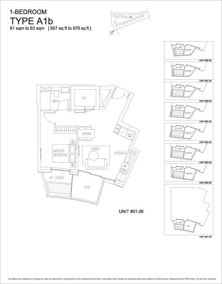
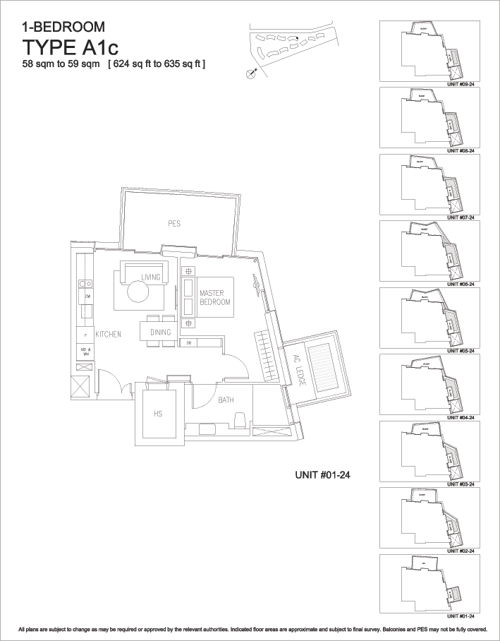
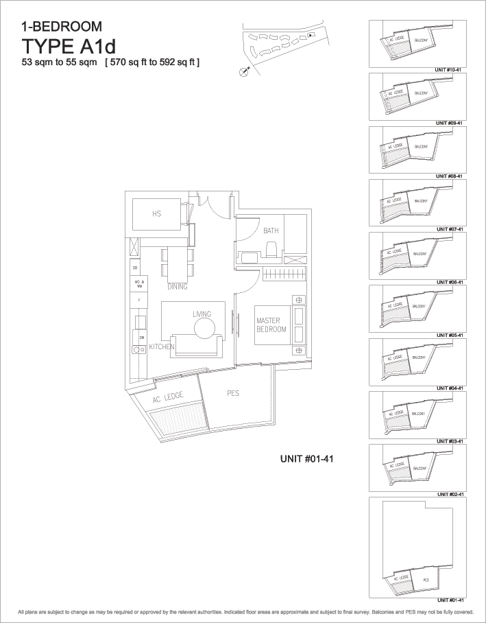
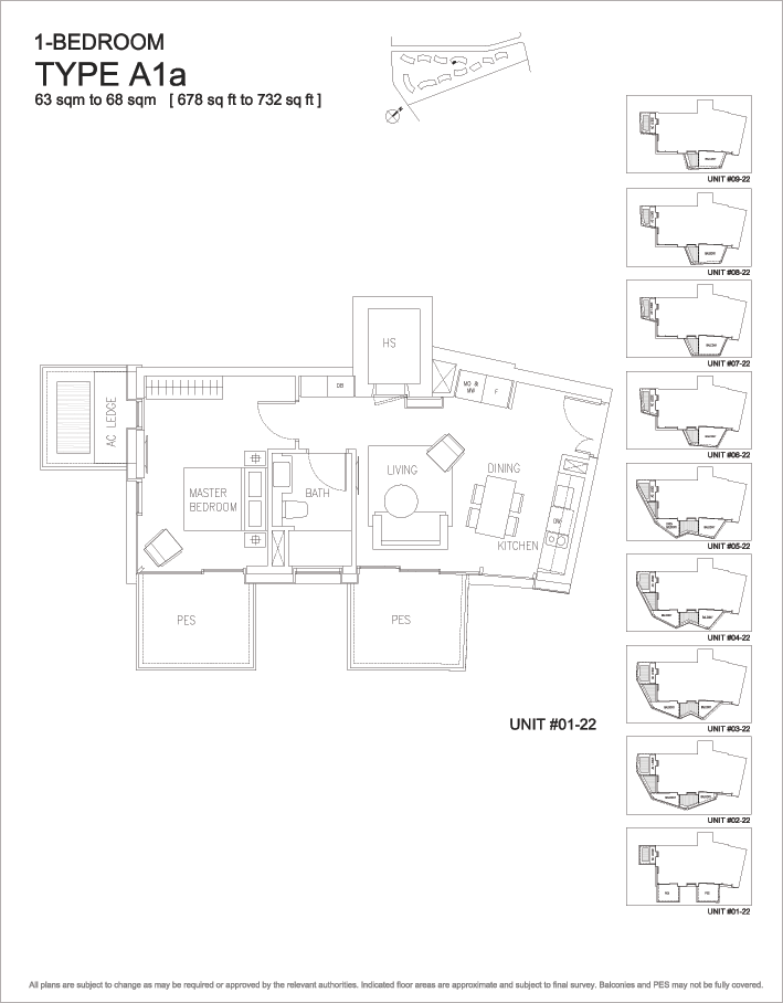
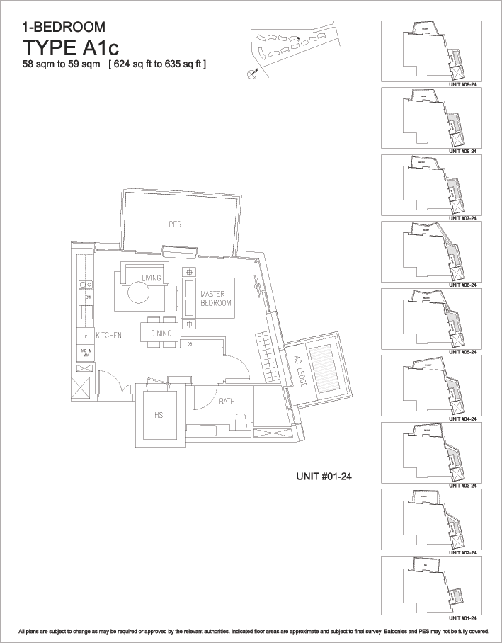
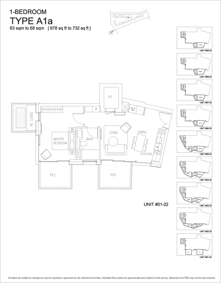
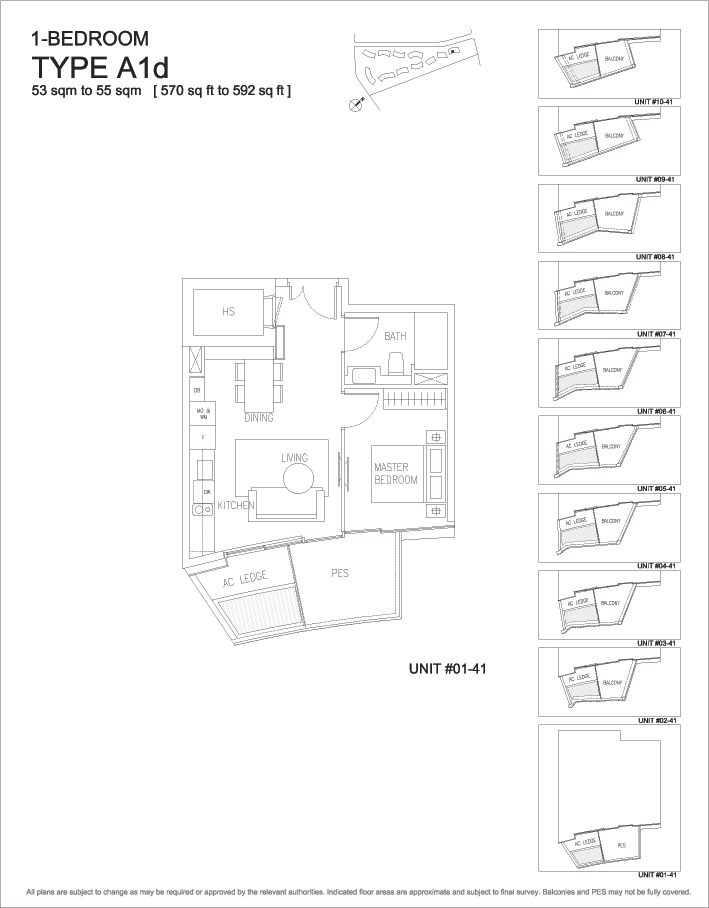
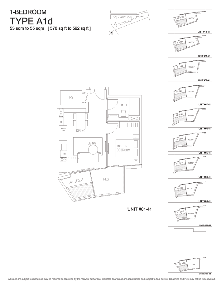
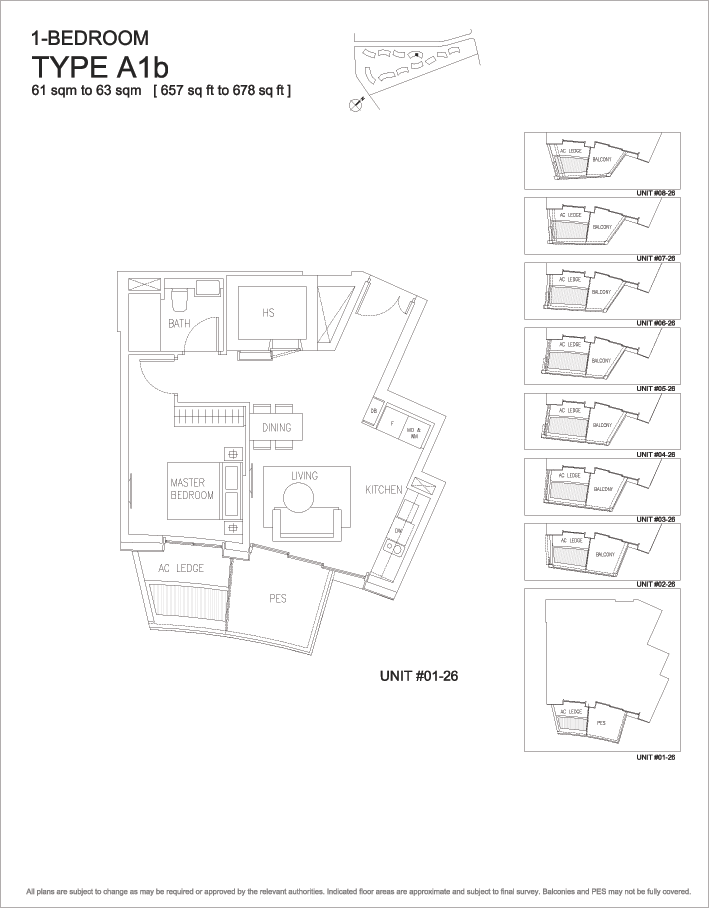
Corals 1 Bedroom
570 - 732 sqft
CARIBBEAN
REFLECTIONS
CORALS
CONTACT US
Keppel Bay Homes
Disclaimer | Terms and Conditions | Copyright